消防車廠家湖北新東日來說說泡沫消防車的消防炮配置
21-11-01 ? 來源:湖北新東日專用汽車有限公司
前面新東日專汽為大家詳細(xì)的介紹了水罐消防車的消防炮圖解,那么泡沫消防車作為水罐消防車的補(bǔ)充車型,其滅火效果比水罐消防車滅火效果更廣,那么泡沫消防車上配置的泡沫炮是怎么配置的呢?
下面新東日專汽再來為大家介紹泡沫消防車的消防炮分類和詳細(xì)圖解和泡沫消防車消防炮的分類:
泡沫消防車一般配置兩用消防車,用字母PL代表,兩用炮是按照口徑的大小來分類,一般有以下幾類:PL24、PL32、PL48**常用的幾種。
泡沫消防車兩用炮的圖解:
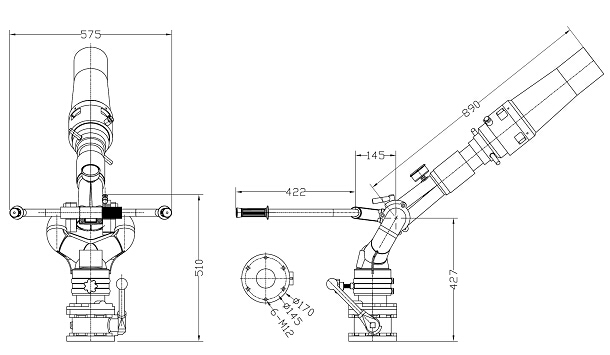
PL24兩用炮詳細(xì)圖解

PL24兩用炮詳細(xì)圖解

PL24兩用炮詳細(xì)圖解
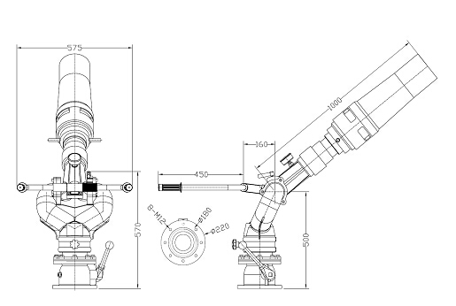
PL32消防兩用炮詳細(xì)圖解

PL32消防兩用炮圖解

PL32消防兩用炮圖解
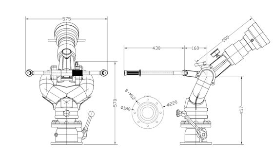
PL48消防兩用炮圖解

PL48消防兩用炮圖解

PL48消防兩用炮圖解
